Kamenický Šenov - prodej rodinného domu
DOMY - PRODEJ REPC3319
Kamenický ŠenovREZERVACE
-
DOMLUVTE SI PROHLÍDKU
Popis nemovitosti
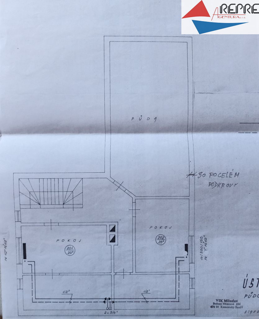
Vážení zájemci, dovolujeme si Vám, ve výhradním zastoupení vlastníka nabídnout rodinný dům v krásném prostředí na rozhraní Českého středohoří a Jizerských hor na okraji města Kamenický Šenov, nedaleko vyhlášených tzv. kamenných varhan. Objekt je napojen na veřejný vodovod, kanalizaci a elektřinu. K domu je zhotovena přípojka plynu, ale bez dalšího využití. Topení je ústřední, s jedním rozvodem pro celý dům, s kotlem na tuhá paliva. Teplou vodu zajišťuje el. bojler. Střecha je polovalbová, po rekonstrukci, s krytinou z plastových šablon, s novými klempířskými prvky a hromosvody. Okna jsou v přízemí plastová, v patře dřevěná, dvojitá se špaletou. Dům je částečně podsklepen – ve sklepě se nachází kotelna a sklad paliva. V přízemí je k domu přistavěno zádveří, se vstupem do společné chodby. Ve dvou patrech se nachází dispozičně totožné, samostatné, bytové jednotky, sestávající z předsíně, koupelny s WC, kuchyně a tří pokojů. Celková užitná plocha každého bytu je 80 m2. V podkroví je jedna nevytápěná místnost a půda. Na dům navazuje bývalá dílna, dnes sloužící jako garáže o užitné ploše 35 m2. Objekt je ve tvaru L, kde vedle domu je zahrádka. Nemovitosti jsou ve stavu odpovídajícím jejich stáří, průběžně udržované – lze je užívat, ale na dnešní standard bydlení budou vyžadovat modernizaci. Energetická náročnost budovy - třída G.
PENB: G
Podrobné informace
Č.zakázky: | REPC3319 |
Lokalita: | Kamenický Šenov |
Město: | Kamenický Šenov |
Typ objektu: | Domy a vily |
Druh: | rodinné |


















